Vista Encantada Eco-Club
Condo Sales and Vacation Rentals
Home
About Us
Contact Us
Location
Condos Sales: Suenos Del Mar
Pricing & Availability
Floor Plans
Floor Plans: Penthouse
Photos
Vacation Rentals
Lot Sales
Home Sales
Privacy Policy
Terms Of Use
Customer service/sales:
bloomingenterprises@hotmail.com
(916)501-2750 & (916)284-5920
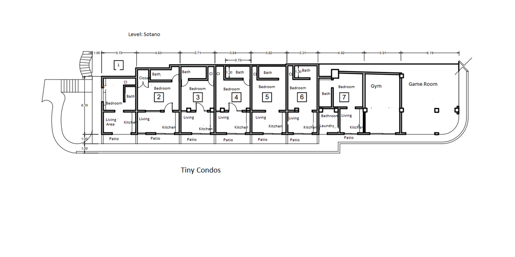
Floor Plans:
Tiny Condos
.